Обяви За нас Контакти
Продава 3-СТАЕН
град София, Обеля
292 100 €
571 297.94 лв.

(1 178 €, 2 303.97 лв./m2)
Цената е с включено ДДС
История на цената
Коригирана в 13:54 на 19 януари, 2026 год.
Обявата е посетена 864 пъти.
Площ:
248 m2
Етаж:
4-ти от 4
Газ:
НЕ
ТEЦ:
НЕ
Строителство:
Тухла, Ще бъде въведен в експлоатация 2026 г.

Описание на имота:


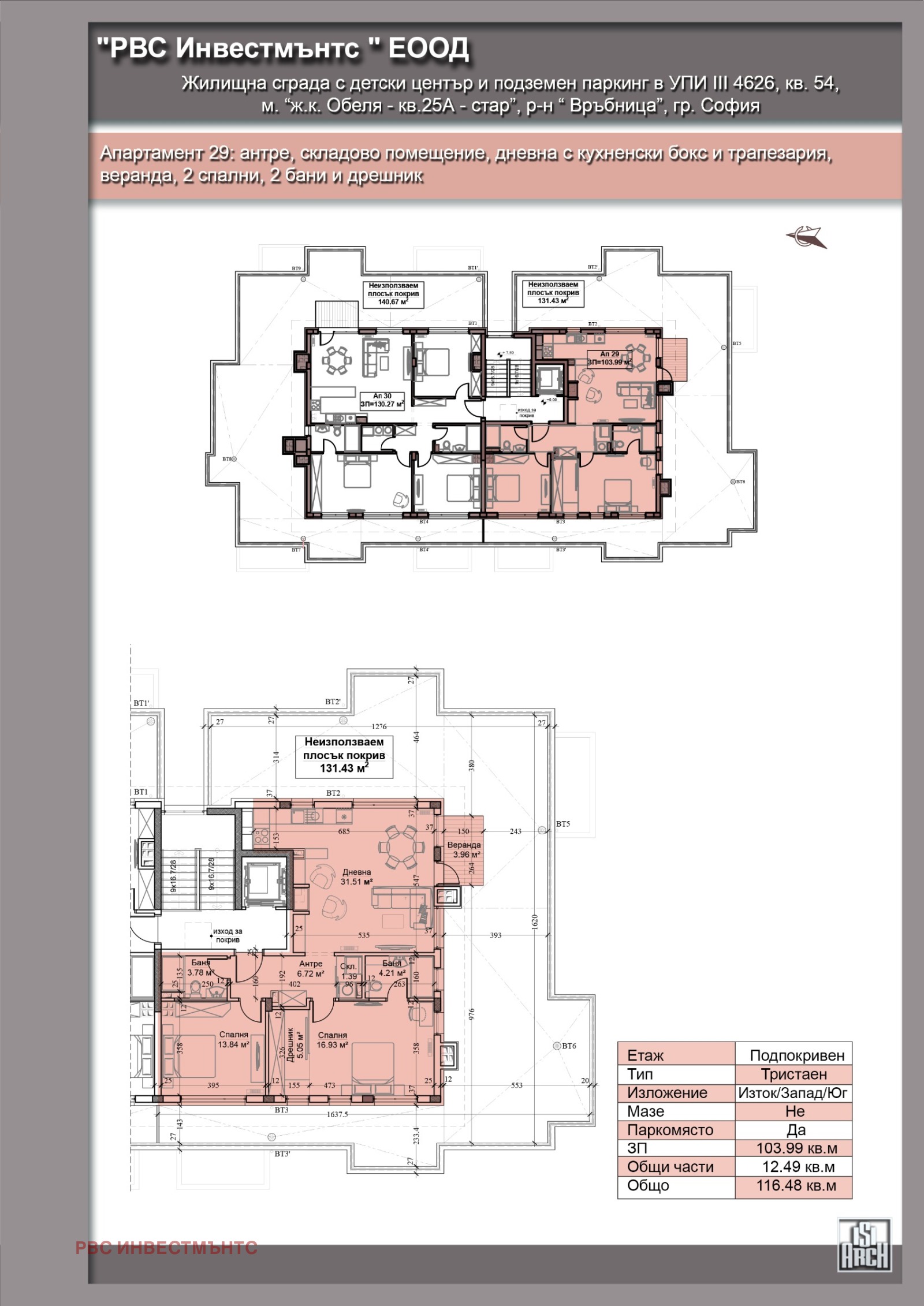
'РВС Инвестмънтс' ЕООД има удоволствието да Ви представи просторен тристаен апартамент в сграда 'Мелиа Резидънс'. Сградата се намира в кв. Обеля и е в непосредствена близост до метростанция 'Обеля'.

Апартаментът е с 116.48 кв.м. обща площ заедно с 131.43 кв.м. самостоятелена тераса и е разположен на четвърти жилищен етаж, с изложение Изток, Запад и Юг.

Имотът се предлага на етап - шпакловка и замазка по БДС.

Цената е с включено ДДС.
За повече информация може да се свържете с нас на посочените телефони.

Офис Мениджър - 0896824835/0877401739

Централен офис - +359 2 426 1244
Особености
Тухла
Видео наблюдение
Контрол на достъпа
Охрана
Саниран
В затворен комплекс
За ремонт
За контакт:
0896824835
Инвеститор:
РВС ИНВЕСТМЪНТС
0877401739/02 4261244 / 0896824835
В imot.bg от 2024 г.
rvsinvestments.imot.bg
Адрес:
област София, гр. София, гр. София, ул. Княз Борис I 108
ИЗПРАТИ ЗАПИТВАНЕ
ИЗПРАТИ ЗАПИТВАНЕТО

Продава 3-СТАЕН
град София, Обеля
Обява: 1c174954731616676

292 100 €
571 297.94 лв.
История на цената
(1 178 €, 2 303.97 лв./m2)

Цената е с включено ДДС
ЗАПАЗИ ОБЯВАТА

Местоположение: град София, Обеля

Допълнителни данни за имотите в района и сравнение с други райони

Покажи

Период

и 2 месеца

* Средните цени са определени чрез медианна стойност